売買建物
更新日:2025年09月18日

【商談中 新井田小・大館中学区】築21年、まだまだ安心して暮らせる住まいです!

価格 1200
間取 3LDK
八戸市大字新井田字館下
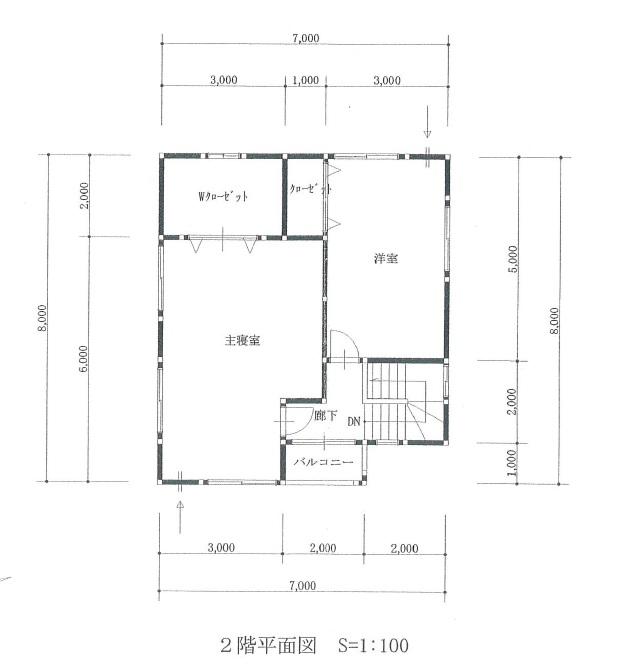
図面と現況が異なる場合には現況優先とさせて頂きます。また、実際の間取りは図面と反転する場合があります。
問合せNo 新井田字館下
取引種目 売買建物 取引態様 仲介
価格 1,200万円 間取り 3LDK
所在地 八戸市大字新井田字館下
交通 市営・南部バス 「新井田」バス停 徒歩4分
土地面積 249.71㎡(75.53坪) 他、私道面積 私道持分なし
建物構造 木造2階建 建物面積 120.62㎡(36.48坪)
間取内訳
接道状況
築年月日 平成16(2004)年3月 他 現況 居住中
引渡し時期 相談 駐車場 2台可
土地権利 所有権 地目 宅地
都市計画 市街化区域 用途地域 第一種低層住居専用地域
建ペイ率(%) 50 容積率(%) 80
ガス プロパン トイレ 水洗
学区(小) 新井田小学校 学区(中) 大館中学校
備考 ・敷地内に物置(附属建物 登記種類:浴室 4.96㎡/1.5坪)あり
・現況でのお引渡しとなります
・現在居住中につき、ご内覧ご希望の場合は事前にお知らせください